12-10-2023
Колонны металлические двухветвевые
Колонны металлические двухветвевые активно используют в строительной отрасли, благодаря их использованию можно существенно упростить монтаж. Колонные монтируют на специальные опорные плиты, используя для фиксации анкерные болты. Крепежные элементы в свою очередь опираются на опорные столики.
Если рассматривать строение готовой продукции, то состоят они из следующих элементов:
Стоимость напрямую зависит от объема сделанного заказа. Получить всю необходимую информацию, а также подписать документы можно в офисе продаж, находящемся по адресу: г. Астрахань,ул. Ленина, д.15, офис 104.
Для получения консультации не обязательно куда-то выезжать, достаточно связаться со специалистом любым удобным способом:
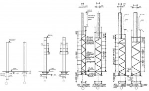
Описание готовой продукции
Двухветвевые колонны, выполненные из металла, пользуются популярностью в промышленном строительстве. Использование данных элементов позволяет грамотно распределить нагрузку, кроме этого, расход материалов остается рациональным.Если рассматривать строение готовой продукции, то состоят они из следующих элементов:
- Надкрановая часть.
- Подкрановая часть. Сюда входят: наружная ветвь, решетчатые элементы, внутренняя ветвь.
- База.
- Элементы, сопряженные с надкрановой и подкрановой частями.
- Оголовок.
Заказать двухветвевые колонны из металла в Астрахани и Астраханской области.
В ООО «Западно-Уральский завод Металлических Изделий» можно не только взять готовую продукцию из металла и строительную технику по договору аренды на период строительных работ в Астрахани и Астраханской области, но и приобрести колонны, выполненные из металла.Стоимость напрямую зависит от объема сделанного заказа. Получить всю необходимую информацию, а также подписать документы можно в офисе продаж, находящемся по адресу: г. Астрахань,ул. Ленина, д.15, офис 104.
Для получения консультации не обязательно куда-то выезжать, достаточно связаться со специалистом любым удобным способом:
- позвонить по номеру телефона – 8(800)551-90-68;
- посетить офис по указанному выше адресу;
- отправить письмо на почту: astrahan@zuzmi.ru.







